Доброго времени суток))) у меня такая проблема: при открытии любой двери и багажника не срабатывает сигнализация, поставленная на охрану, хотя если понажимать на концевик двери несолько раз - срабатывает. Концевики функционируют правильно, фонарики в стойках загараются.
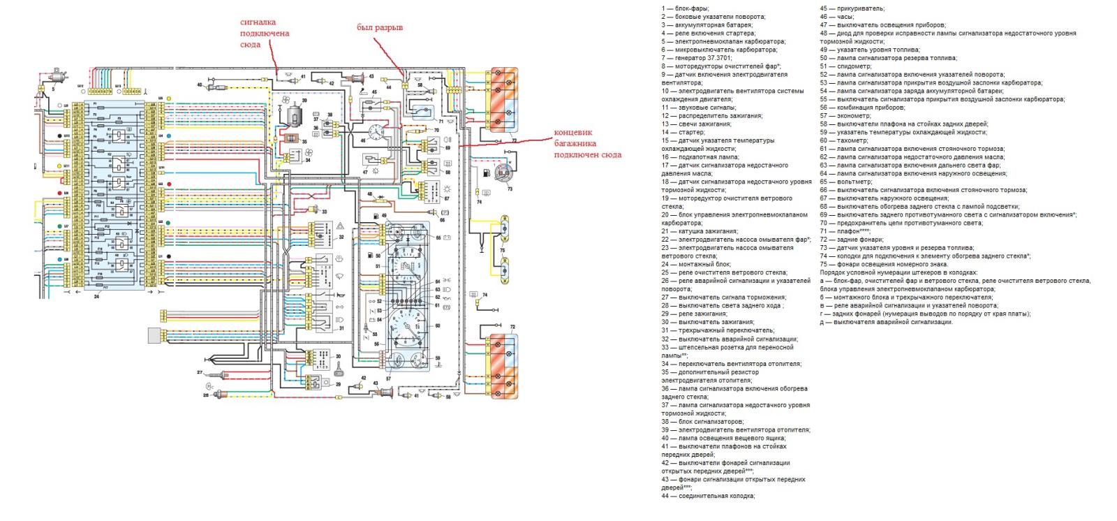
Купил машину с уже установленной сигналкой Centurion 1. Установлена она вроде как правильно, но в машине были косяки с проводкой, были подключены только два концевика дверей (водительская и пассажирская передняя) + багажник (по такому же принципу), также не работал фонарик в стойке над водит. сиденьем (там был разрыв белого плюсового провода). Вобщем все сделал по-человечески, все кроме сигналки исправно работает.
Я уже не знаю что делать

, по началу думал что все-таки концевики всему виной, поменял, эффекта - ноль. Все остальные функции сигналка исправно исполняет. Может кто знает в чем проблема? вот схемы сигналки и фрагмент семерочной электросхемы с кое-какими пояснениями: